Căn nhà này được chia làm 2 phần, 1 phần để cho cặp vợ chồng già ở và phần còn lại cho thuê với giá không dưới 2.000 USD/tháng.
Sau hơn 30 năm sống và làm việc tại Châu Âu, chủ của dự án này đã hơn 60 tuổi và muốn quay trở lại Việt Nam để tận hưởng những giây phút thư thái cuối đời.
Cùng với đó, họ đã chọn được một vị trí khá đẹp, đúng với mơ ước của họ. Đó là mảnh đất 180m nằm tại núi Sơn Trà của thành phố Đà Nẵng.
Miếng đất này có vị trí khá đẹp, bên cạnh một con suối nhỏ và gần bờ biển.
Vị trí này khá lạnh và khác biệt so với các vùng khác của thành phố.
Chủ nhân của dự án muốn xây một ngôi nhà cho cặp đôi với 2 phòng ngủ và mọi thứ nên gọn gàng và ngăn nắp. Tuy nhiên, cặp đôi già này vẫn làm việc tại Châu Âu và không thể về Việt Nam, ít nhất là trong vòng 3 – 5 năm tới.
Chính vì vậy, đơn vị thiết kế đã đề xuất với gia chủ về việc xây 2 ngôi nhà nhỏ riêng biệt.
Một ngôi nhà được hoàn thiện, sẵn sàng phục vụ cho gia chủ khi họ ghé thăm Việt Nam. Còn một ngôi nhà để cho thuê với giá không dưới 2.000 USD/tháng.
Cặp vợ chồng này đã gật đầu đồng ý với đề xuất vì với cách thiết kế này, họ vẫn có nguồn thu nhập mà không hề ảnh hưởng đến thói quen sinh hoạt.
Từ những kế học chi tiết, ngôi nhà đã được dựng lên. Nhóm thiết kế đã chia miếng đất thành 2 phần, 1 là phía trước và 1 ở phía sau. Phía trước là ngôi nhà cho thuê với 2 phòng ngủ, đầy đủ các trang thiết bị, có phòng khách và cả nhà bếp.
Phần phía sau chính là ngôi nhà cho cặp vợ chồng già sử dụng khi trở về Việt Nam.
Căn nhà này bên cạnh những tiện nghi tối giản còn có 1 bể bơi nhỏ như là một không gian để thư giãn.
Cấu trúc chính của ngôi nhà hoàn toàn bằng thép và có phần gác xép rất đặc trưng của người Việt Nam.
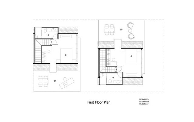
Trên tầng đầu tiên, có một phòng khách, nhà bếp, phòng ngủ và nhà vệ sinh. Tầng thứ hai có một phòng ngủ, một gác mái, một nhà vệ sinh và một sân chơi rộng rãi để thư giãn, đọc sách và ăn uống.
Sơ đồ bố trí trong căn nhà.
Theo Nhịp sống kinh tế/Pha Lê













